Whirlpool Casa Cavallo
Whirlpool Casa Cavallo
Casa Cavallo und Casa Leonardo im Land Fleesensee jetzt mit schnellem Internet, bis zu 150 MBit/s
Casa Cavallo und Casa Leonardo im Land Fleesenseejetzt mit schnellem Internet, bis zu 150 MBit/s                

Die Ferienhäuser CASA CAVALLO  und Leonardo sind separate Ferienhäuser in einem sternförmigen Gesamtbaukörper von insgesamt 4 separaten Ferienhäusern, die alle über einen eigenen Gartenbereich mit eigenem Außenwhirlpool verfügen. Sie haben den gleichen Grundriss und gleiche Ausstattung, sind aber zueinander spiegelverkehrt - sehen sie zunächst Casa Leonardo, darunter folgt Casa Cavallo

 

 

Erdgeschoss Casa Leonardo mit Wohnzimmer mit Kamin, Esszimmer und Küche, Schlafzimmer Erdgeschoss und Bad.

 

Im Garten Terassse mit Kamin, Whirlpool und Liegen

 

 

 

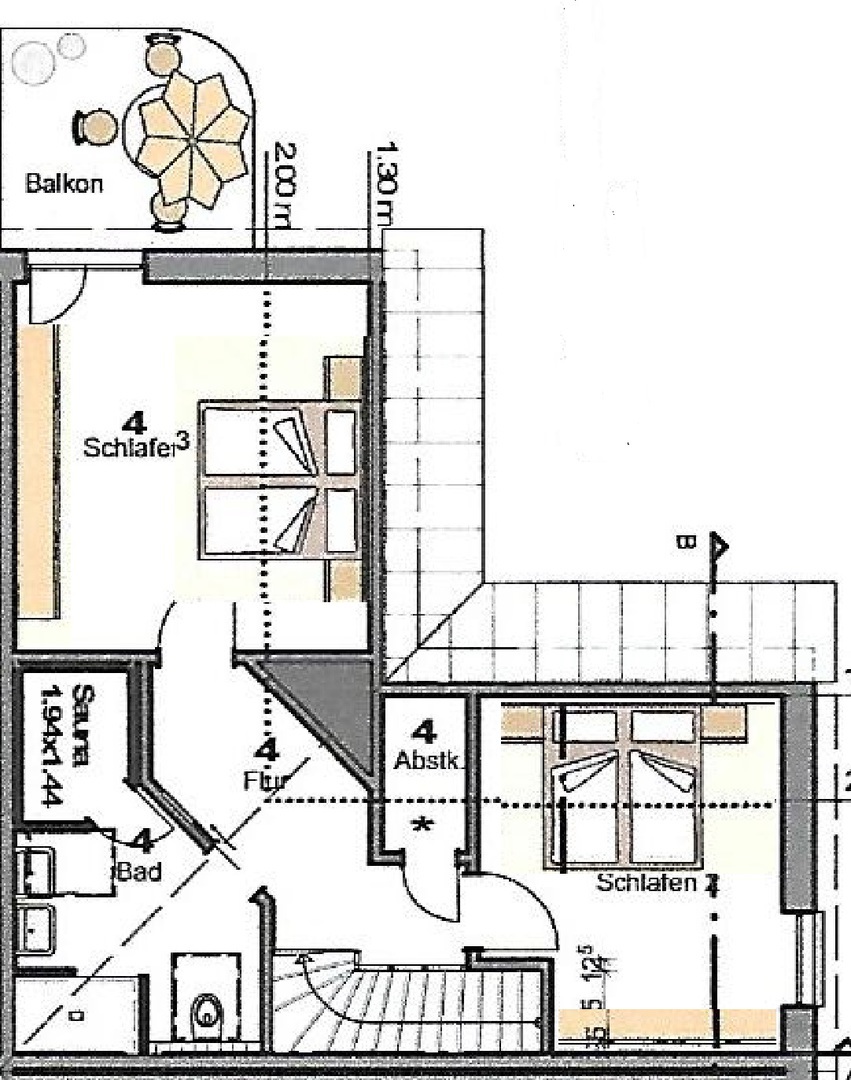
Obergeschoss Casa Leonardo mit Sauna, Bad, 2 Schlafzimmern, einem Schlafzimmer mit Balkon und Nebbenraum mit Waschmaschine

 

 

Erdgeschoss Casa Cavallo mit Wohnzimmer mit Kamin,

Esszimmer und Küche, Schlafzimmer Erdgeschoss und Bad.

 

Im Garten Terasse mit Kamin, Whirlpool und Liegen

 

 

 

 

Obergeschoss Casa Cavallo mit Sauna, Bad, 2 Schlafzimmern, einem Schlafzimmer mit Balkon und Nebbenraum mit Waschmaschine

Druckversion | Sitemap
Ein Komfortangebot der © Ferienwohnungen im Wasserturm